Ref # : GE2350
For Sale € 278,000.00
Plot of Land - Permits in Hand
Kercem, GOZOOverview
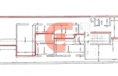
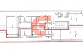
A wide fronted Plot of Land is being sold with permits in Hand to build, basement storage, a street-level four-car garage, three bedrooms at the First Floor, and a combined kitchen/dining/living with terrace at Roof Level, situated close to the center.
Pdf plans below ↓
Giovanni Real Estate
One of the successful real estate agency in the Maltese Islands offering property for sale and turnkey solutions in Malta and Gozo. A vast range of,Apartments, Penthouses Maisonettes, Terraced Houses, Traditional Farmhouses, Houses of character ,Bungalows, Villas, Commercial outlets, property investments and properties for sale are available in Malta and Gozo.
Check out our website, the best place to start your real estate search. You can also contact our real estate agent for a customized selection of the property types you are interested in, including professional advice and opinion.




