Ref # : GE3826
For Sale € 120,000.00
Apartment Just Added
Sannat, GOZOOverview
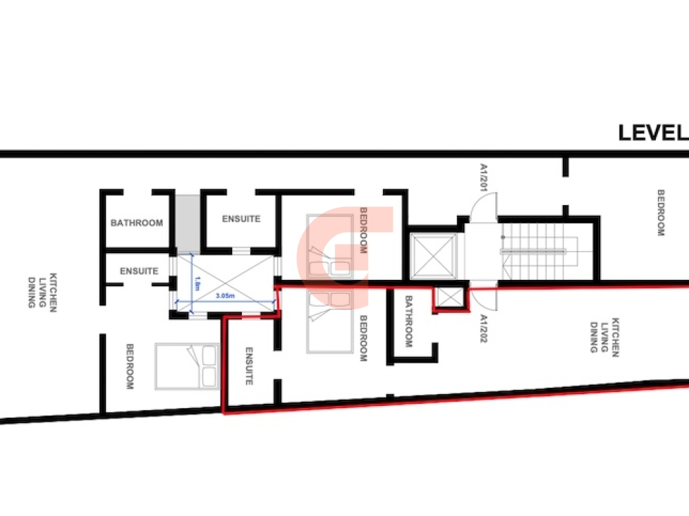
A brand-new residential development has just been released in a quiet area of Sannat. This modern project consists of two elegant blocks offering a diverse selection of maisonettes, apartments, and optional garages or car spaces.
Why This Development Stands Out
• Modern layouts designed for comfort, practicality, and style
• Located in a peaceful residential zone close to everyday amenities
• Selection of 1–3 bedroom units
• Generous internal spaces complemented by functional outdoor areas
Additional €8,000 for Lift and Common Parts
Features
Base Information
Parking Information
Building Information
General Amenities
Exterior Amenities
Giovanni Real Estate
One of the successful real estate agency in the Maltese Islands offering property for sale and turnkey solutions in Malta and Gozo. A vast range of,Apartments, Penthouses Maisonettes, Terraced Houses, Traditional Farmhouses, Houses of character ,Bungalows, Villas, Commercial outlets, property investments and properties for sale are available in Malta and Gozo.
Check out our website, the best place to start your real estate search. You can also contact our real estate agent for a customized selection of the property types you are interested in, including professional advice and opinion.

