Ref # : GE3978
For Sale € 325,000.00
Penthouse Just Added
Qala, GOZOOverview
An exceptional top-floor penthouse offering a premium lifestyle with expansive outdoor areas and stunning open views.
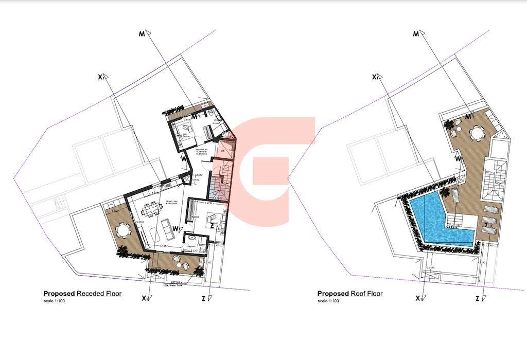
This unique property features a spacious open-plan kitchen, living, and dining area that opens onto a remarkable 126.37m² outdoor terrace, ideal for entertaining, lounging, or creating a private rooftop oasis. The layout includes 2 bedrooms, with the main bedroom featuring an en-suite, along with a main bathroom.
With 92.49m² internal space, this penthouse delivers the perfect balance between indoor comfort and outdoor luxury.
An outstanding opportunity for those seeking a high-end residence or exclusive investment in Gozo.
Additional €10,000 Lift & Common Parts
Features
Base Information
Parking Information
General Amenities
Exterior Amenities
Giovanni Real Estate
One of the successful real estate agency in the Maltese Islands offering property for sale and turnkey solutions in Malta and Gozo. A vast range of,Apartments, Penthouses Maisonettes, Terraced Houses, Traditional Farmhouses, Houses of character ,Bungalows, Villas, Commercial outlets, property investments and properties for sale are available in Malta and Gozo.
Check out our website, the best place to start your real estate search. You can also contact our real estate agent for a customized selection of the property types you are interested in, including professional advice and opinion.


