Ref # : GE3811
For Sale € 300,000.00
Large Maisonette with Back Yard Just Added
Qala, GOZOOverview
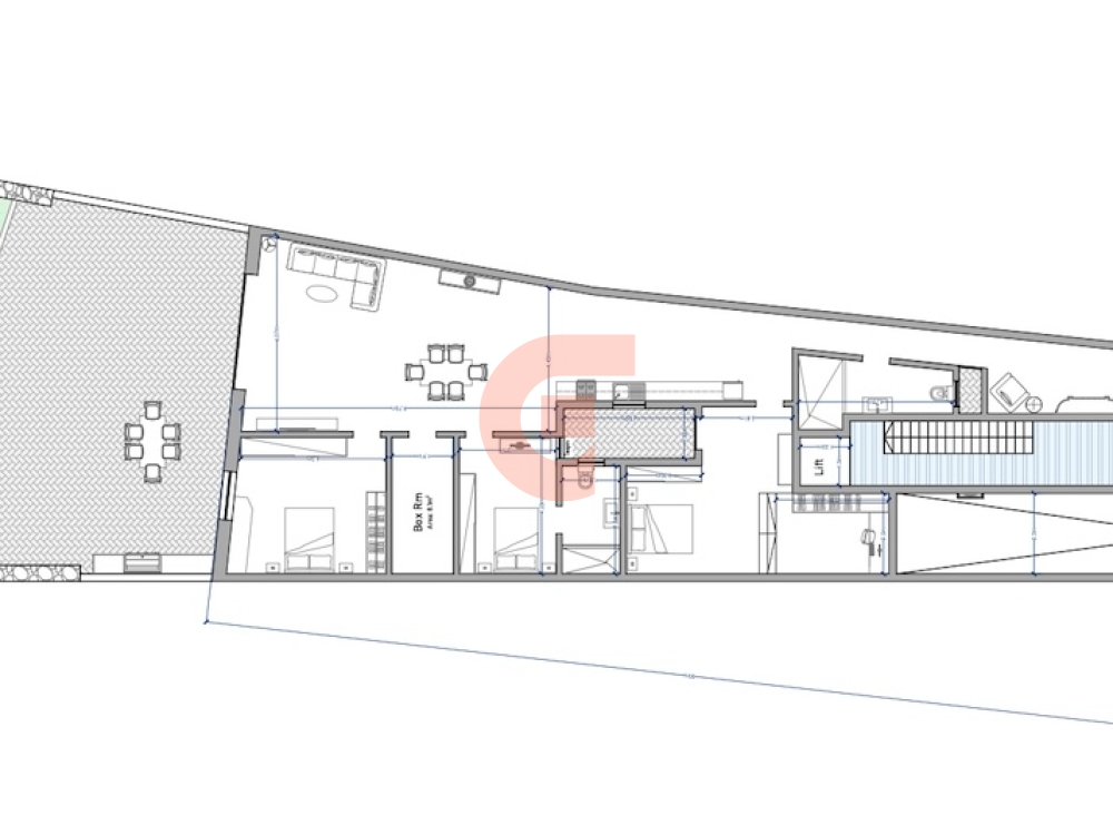
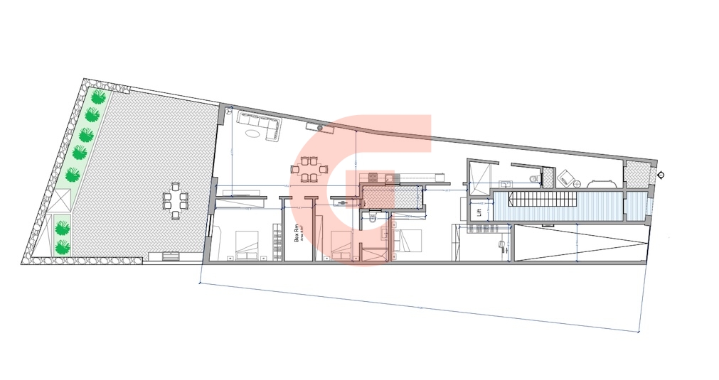
Spacious 3-Bedroom Maisonette in the Outskirts of Qala
Located in a quiet and charming area on the outskirts of Qala, this beautifully designed ground-floor maisonette offers the perfect combination of modern living, space, and comfort. With a generous total area of 344.8 m², this property provides an exceptional layout ideal for both families and those seeking a peaceful retreat on the island.
The maisonette features a bright open-plan kitchen, living, and dining area, designed to maximise natural light and create a seamless flow between indoor and outdoor spaces. The property includes three well-proportioned bedrooms, providing ample space for relaxation and privacy. The large back yard is perfect for outdoor dining, entertaining guests, or simply enjoying Gozo’s pleasant climate in a tranquil setting.
Built to high standards, this home combines modern finishes with practical design elements that ensure comfort and functionality throughout. Its generous layout allows flexibility for a variety of uses — whether as a permanent residence, a rental investment, or a spacious holiday getaway.
Property Features:
-
3 Bedrooms
-
Large Back Yard – Ideal for entertaining or relaxing outdoors
-
Total Area: 344.8 m²
-
Modern open-plan kitchen, living, and dining area
-
Ground-floor level with easy access
-
High-quality finishes throughout
Price: €300,000
Garages: Optional
Common Parts: None (no lift or shared areas)
This maisonette offers excellent value for those looking to enjoy the quiet charm of Qala while remaining within easy reach of local amenities, restaurants, and the village square.
Features
Base Information
Parking Information
General Amenities
Exterior Amenities
Interior Amenities
Giovanni Real Estate
One of the successful real estate agency in the Maltese Islands offering property for sale and turnkey solutions in Malta and Gozo. A vast range of,Apartments, Penthouses Maisonettes, Terraced Houses, Traditional Farmhouses, Houses of character ,Bungalows, Villas, Commercial outlets, property investments and properties for sale are available in Malta and Gozo.
Check out our website, the best place to start your real estate search. You can also contact our real estate agent for a customized selection of the property types you are interested in, including professional advice and opinion.


