Ref # : GE3187
For Sale € 299,000.00
Apartment with Channel Views
Ghajnsielem, GOZOOverview
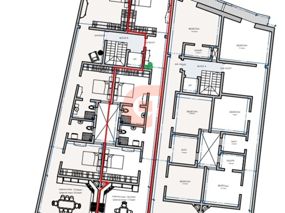
The project is made up of 2 blocks, overlooking channel and country views, consisting of 2 ground floor Duplex Maisonettes with a private pool, two-bedroom apartments on the first, second, and third floors, and two-bedroom penthouses all of which enjoy distant sea views.
All units are being sold fully finished, including bathrooms, doors, and common parts.
The project is currently on plan and set to be completed in shell by August 2025 and common parts finished by February 2026.
Features
Base Information
Parking Information
Building Information
General Amenities
Exterior Amenities
Interior Amenities
Giovanni Real Estate
One of the successful real estate agency in the Maltese Islands offering property for sale and turnkey solutions in Malta and Gozo. A vast range of,Apartments, Penthouses Maisonettes, Terraced Houses, Traditional Farmhouses, Houses of character ,Bungalows, Villas, Commercial outlets, property investments and properties for sale are available in Malta and Gozo.
Check out our website, the best place to start your real estate search. You can also contact our real estate agent for a customized selection of the property types you are interested in, including professional advice and opinion.




