Ref # : GE3988
For Sale € 1,180,000.00
Boutique Hotel / Hospitality Project Just Added
Ghasri, GOZOOverview
A unique opportunity to acquire a fully planned hospitality development ideal for a boutique hotel, luxury guesthouse, or wellness retreat, located in Gozo.
This thoughtfully designed project is set across multiple levels and offers a comprehensive layout tailored for high-end guest accommodation and premium facilities. The basement level includes wellness amenities such as an indoor pool, jacuzzi, and supporting facilities, creating a strong foundation for a luxury experience.
At ground floor level, the property features a welcoming reception area, restaurant and breakfast areas, a private function space, and an outdoor pool with surrounding garden, ideal for both guests and events.
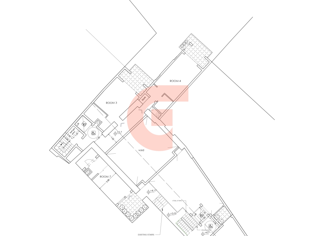
The upper floors are designed to accommodate multiple guest rooms, all served by a lift, ensuring accessibility and comfort throughout. The project is further complemented by a roof level featuring additional outdoor space and a pool area, enhancing its appeal as a premium hospitality destination.
The overall layout, as illustrated in the plans, provides a well-balanced combination of leisure, dining, and accommodation spaces, making it an excellent investment opportunity within Gozo’s growing tourism sector .
Key Features:
- Reception and lobby area
- Restaurant and breakfast facilities
- Private function area
- Indoor pool and jacuzzi
- Outdoor pool with garden
- Multiple guest rooms across levels
- Lift and full accessibility
- Roof level with additional outdoor space and pool
This project offers strong potential for high returns and long-term value, making it ideal for investors seeking a distinctive hospitality concept in Gozo.
Features
Base Information
Parking Information
General Amenities
Giovanni Real Estate
One of the successful real estate agency in the Maltese Islands offering property for sale and turnkey solutions in Malta and Gozo. A vast range of,Apartments, Penthouses Maisonettes, Terraced Houses, Traditional Farmhouses, Houses of character ,Bungalows, Villas, Commercial outlets, property investments and properties for sale are available in Malta and Gozo.
Check out our website, the best place to start your real estate search. You can also contact our real estate agent for a customized selection of the property types you are interested in, including professional advice and opinion.













